76㎡的建筑面积,很多人第一反应就是小,一般就是个刚需小两房户型,住一家三口。可理想是丰满,现实是残酷的。三代同堂,76㎡居住六口人,要改造成四房,让彼此拥有独立的空间。想想就觉得不可思议,除了拥有个人独立空间外,还需要充足的收纳,怎么设计呢?看看接下来这套装修案例,76㎡的面积,不仅改造出四房,塞下一家六口全部家当,还布置的井井有条,简直太佩服了。(图:一宅一物设计)
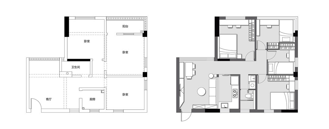
改造前后户型图对比,76㎡的面积,重新布局设计后,由原来的三房变成了四房,满足一家六口住宿。同时增加了大量收纳空间,保持居家整洁。
平面布置图,可以清晰的看到改动变化。厨房移到了原来餐厅的位置,卫生间也做了移动,重新分割原有卧室,实现四房要求。
面积不大的客厅,装修上放弃多余的装饰和造型,大面积使用白色提升空间明亮,大量的留白让人觉得简单清爽,改善视觉效果避免拥挤感。灰色调的三人坐沙发,坐感舒适,坐宽适宜,与整体格调很搭配。
客厅取消电视墙,取而代之的是一整面定制储物柜,居家易耗品和一些衣物可以收纳于此。沙发边一排矮柜设计,实用又减少空间压迫感。简易轻巧的茶几,满足日常物品摆放原则,又可以随意移动。
厨房换到了原来餐厅的位置,考虑到油烟问题,放弃了开放式厨房设计,临近客厅面做了半玻璃隔断,增加空间之前的通透性,引入光线让厨房不那么昏暗,视野也更加开阔。
餐厅一角承担着餐厅的功能,架空隔板变成卡座可以作为长凳使用。简易造型的桌椅,实用占用面积少,视觉空间更显通透。
厨房黑白配简洁高级,半玻璃隔断设计延伸视野,让厨房看起来没有那么狭小。充分利用墙面做收纳,保持厨房的整洁与实用。
卫生间也做了移动,重新挖地埋排污管简直拼了。改造后两分离式的卫生间设计,对于小户型而言再实用不过了。卫浴区空间比较紧凑,选择用浴帘做隔断,实用空间灵活。
主卧空间紧凑,依据尺寸量身定制衣柜和简易书桌。黑与白的色彩运用,简约耐看空间也不过于拥挤。靠窗采光最好,留给了办公空间,25mm的桌面板一搭,简易书桌完成。
老人房延续了黑白简约格调,踢脚线与地板保持统一,视觉效果更加和谐。多方面考虑,老人房单独配备了电视,在房内就可以享受天然的时光。
儿童房,榻榻米床对于小户型再合适不过了,按照传统家具摆放,一张床摆放下去就没多余空间了,就更别提书桌了。定制设计将空间利用到极致,满足多种需求。
女儿房同样全屋定制,将空间利用最大化,提高收纳与实用性。借用墙面设计了壁龛,收纳兼具展示功能,可以摆放书籍和工艺品。靠窗设计书桌,充分利用自然光线,打造一处光亮的学习空间。
推荐阅读:桐城之声
设为首页



